constructor group logo
5 star google reviews constructor group logo

Monday - Friday 9:00am - 5:00pm

Limited Offer

Get A FREE Concept Floor Plan & Detailed Quote for Your Radiology Fit Out

*concept floor plan usually costs $1000

Get Your FREE Concept Plan and Detailed Quote

Step 1 of 2

Great, We Just Need Your Contact Details

To Contact You and Organise A FREE Site Assessment
To Email You Your FREE Concept Plan & Detailed Quote
fit out for aspire radiology logo
fit out for altus medical imaging logo
fit out for oran park radiology logo
fit out for shire women's imaging
fit out for san radiology & nuclear medicine
fit out for life medical imaging radiology logo

What You Get FREE

  • FREE onsite assessment to deeply understand your businesses needs and any considerations before you sign a lease or at your existing location

  • A FREE concept floor plan that showcases what your proposed layout could look like
    *typically costs $1000

  • A highly detailed, no-obligation quote that provides clarity and certainty on all inclusions, processes and price

  • If needed, advice on signing your lease in order to maximise your agreement

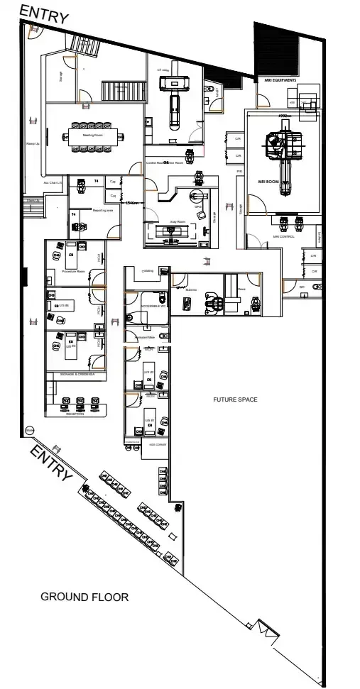
A free floorplan example shown by constructor group

Be Confident Your Fit Out Will Be Done Right

the tax factor sydney office fit out
fit out done for an office kitchen in Sydney
bank fit out in Sydney CBD
modern medical fit out space
radiology reception desk fit out in Sydney
open floor space office fit out
clean white and modern styled dentist reception desk fit out
dark personal doctors office fit out projec
ultra modern Sydney office fit out
light and bright office fit out for a university
white marble and white lights modern office fit out in Sydney
chart showcasing the benefits of constructor group fit outs

Why Constructor Group?

  • Long, established track record of delivering quality commercial fit outs

  • Options to suit all budgets and the ability to compare quotes

  • Reliable turn around times with certainty on start & end dates

  • The complete solution to match your needs - plan, design & build

The comparison chart is used against compared to multiple companies and does not indicate one specific competitor.

This offer is limited to valid fit outs located in Sydney as deemed by Constructor Group.

Built by